1177 Jamestown Road

Property Features

  • Two-story Dutch Colonial office building. 

  • Situated on the northern corner of the signalized intersection of Route 199 & Jamestown Road, adjacent to CVS. 

  • Centrally located in the Greater Williamsburg Area. 

  • Easy Access to Interstate 64 via Route 199. 

  • Close proximity to Colonial Williamsburg, the College of William Mary, New Town and Williamsburg-James City County Courthouse. 

 

Property Location

 
 

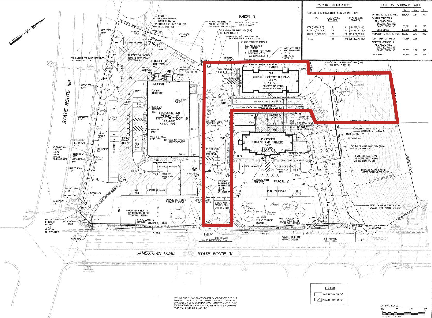
Site Plan

 

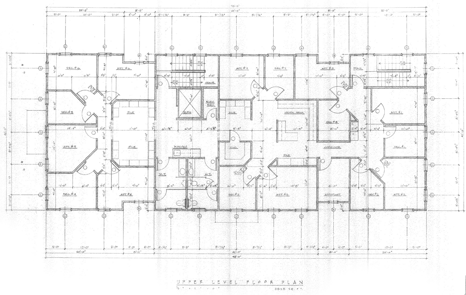
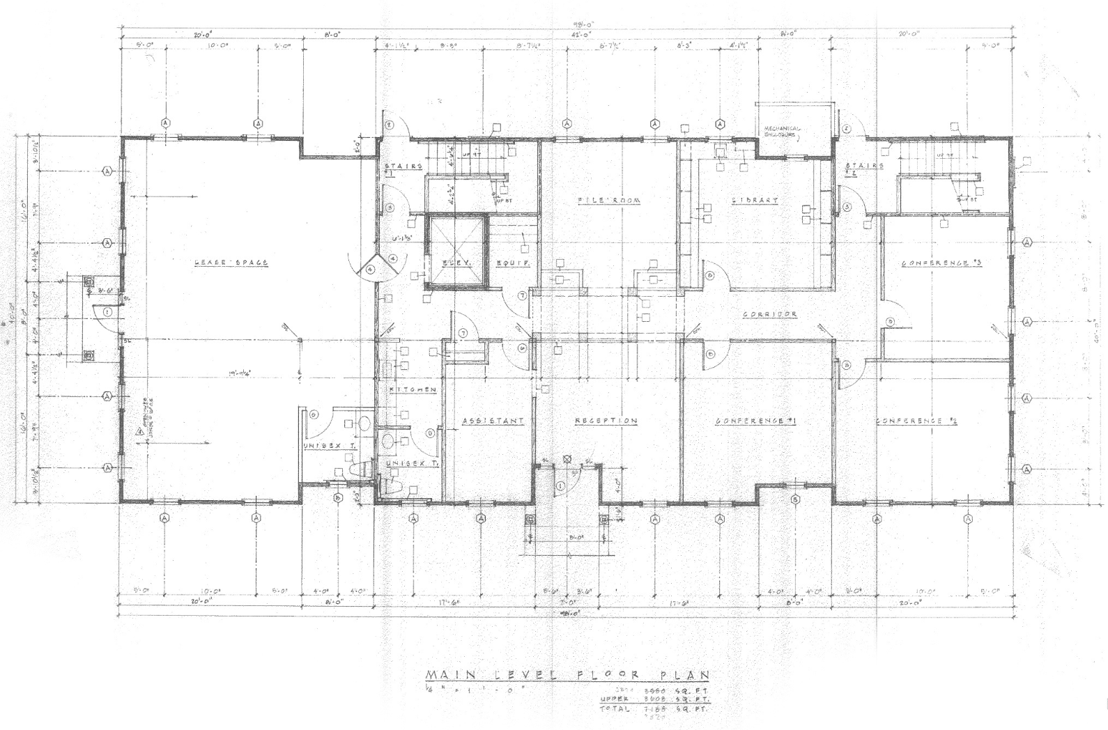
Floor Plan

 
Piper Creative

A boutique agency with hyperfocus & hands-on service. Take your brand to the next level with creative solutions. Create a business strategy and problem-solve through innovative design. Start from the ground up or rethink what already exists. With Piper Creative Studio, anything is possible.

https://pipercreative.studio
Next
Next

1350 Richmond Road